Качество, проверенное временем.
Качественная рабочая проектная документация с полным набором чертежей и расчетом стройматериалов для строительства.
Главная

Помощь с выбором проекта дома тел: +7 925 585-89-91. WhatsApp: +7 (926) 377-46-81.

Все проекты домов
Авторизация покупателя
Логин:
Пароль:
Забыли свой пароль?
Профиль покупателя
Корзина0 позиций
на сумму 0 руб.
Видео стройка

Строительство дома: система ПОРОТЕРМ (POROTHERM) - современно, качественно, надежно.
Посмотреть видео: строительство, отделка, инженерные коммуникации
Фото строительства домов
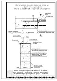
Строительство домов из газобетона (блоков). Узел опирания оконного блока на стену из газобетонных блоков. Стена из газоблоков с наружной штукатуркой.
Посмотреть все фотоальбомы
строительства домов
Предметы интерьера дома
Украшение сада. Каменные шары.
Посмотреть все фотоальбомы
предметы интерьера

Каталог готовых проектов домов и коттеджей Библиотека статей о строительстве Картотека строительных сайтов
Каталог готовых проектов
домов и коттеджей
Библиотека статей
о строительстве
Картотека
строительных сайтов

Как купить проект дома или коттеджа в Новом Уренгое

город Новый Уренгой

Уважаемые жители Нового Уренгоя, прежде чем вы приступите к поиску проекта дома, коттеджа, гаража или бани в каталоге компании ПАРФЕНОН, мы рекомендуем вам ознакомиться с нижеприведенной информацией.

Рекомендации по выбору проекта дома для Нового Уренгоя

Исходные данные для строительства частных малоэтажных домов в г. Новый Уренгой

1 Природно-климатический район:
2 Расчетная температура наиболее холодной пятидневки (обеспеченностью 0.92) -46 гр.С
3 Градусо-сутки отопительного периода (ГСОП) 8900-10600
4 Продолжительность отопительного периода 286 суток
5 Расчетное значение веса снегового покрова на 1 кв.м. горизонтальной поверхности земли для V района 3.2 кПа (240 кгс/кв.м.)
6 Нормативное значение ветрового давления для II района 0.30 кПа (30 кгс/кв.м.)
7 Средняя глубина промерзания грунта 2.800 м.
8 Уровень сейсмической опасности* менее 6 баллов
*Примечание: в баллах шкалы MSK-64 для средних грунтовых условий и степени сейсмической опасности – А (10%) в течение 50 лет.

Выводы: Новый Уренгой расположен в области умеренного резко континентального климатического пояса, территория города приходится на его самую северную часть, граничащую с субарктическим климатом. Зимы в Уренгое продолжительные и холодные (около 286 дней в году). Самый тёплый период приходится на июль со среднемесячными температурами в +17,1 °C. Несмотря на то, что климатическое лето в городе длится всего около 40 дней, нередко в это время в Новом Уренгое стоит удушающая жара около +30..+35 °C. Для города характерны резкие изменения температуры и сильные ветра. Температурные показатели необходимые для расчета ограждающих конструкций зданий жилых домов ГСОП (показатель градусо-сутки отопительного периода) значительно превышают расчетные показатели в наших готовых проектах (в них ГСОП = до 5000С сут. ). Глубина промерзания грунтов на 70% больше, чем в расчетных показателях принятых в наших конструктивных решениях (расчет на 1.500 м). Снеговые нагрузки таковы, что требуется усиление в конструкции несущих частей крыши. Ветровые нагрузки не превышают расчетных показателей для типовых проектов. Сейсмическая опасность минимальная.

Учитывая эти, очень важные при строительстве домов, характеристики мы рекомендуем застройщикам из Нового Уренгоя в обязательном порядке производить переработку и адаптацию фундаментов и несущих конструкций готовых типовых проектов под геологические и климатические показатели региона. Отнеситесь, пожалуйста, к этим рекомендациям очень серьезно.

Дома для постоянного проживания.
  • Фундаменты:

    на основании геологического отчета конкретного участка застройки и заключения конструктора-проектировщика.

  • Наружные несущие стены из блоков газобетона, поризованного кирпича.

  • Конструкция наружных стен из газобетона: 400 мм кладка блока + 100 мм утеплитель + облицовка поризованным кирпичом 120 мм.
    Конструкция наружных стен из поризованного камня (кирпича):
    Вариант 1. каменная кладка 440 мм + 100 мм утеплитель + 120 мм облицовка кирпичом.
    Вариант 2. каменная кладка 510 мм + 100 мм утеплителя + облицовка кирпичом 120 мм или штукатурка.

  • Конструкция крыши:

    чердачная холодная или мансардная, с усилением стропильной части крыши, покрытие: металлочерепица, гибкая битумная черепица, цементно-песчаная или натуральная черепица.

Дома для сезонного проживания.

Ограничений для строительства домов сезонного проживания не имеется. Рекомендуем вам строить такие дома из деревянного клееного или профилированного бруса, оцилиндрованного бревна, деревянного каркаса, каркасно-щитовых конструкций или СИП-панелей.

Если вам понравился проект дома с иными техническими показателями и конструктивными решениями, чем рекомендованные нами для строительства в г. Новый Уренгой, то во многих случаях мы можем переработать проектную документацию под ваши условия.

Заказ проекта дома в Новом Уренгое

Вы можете заказать проектную документацию домов и иных построек, представленных в нашем каталоге готовых архитектурных проектов любым удобным для вас способом.
1. Отправить заявку через форму обратной связи, которая присутствует на страничке каждого проекта в правом нижнем углу экрана.
2. Наши специалисты готовы принять ваш заказ по телефонам указанным на сайте. То же самое вы сможете сделать, заказав обратный звонок.
Мы не посредники и не перепродаем проекты по завышенным ценам. Обратившись к нам вы сможете напрямую заключить договор на приобретение готового проекта дома или индивидуальное проектирование непосредственно с архитекторами авторами проектной документации.

Форма оплаты проектной документации

Оплата проектной документации производится только по договору, заказчик вносит 100% предоплаты, безналичным перечислением денежных средств в отделении любого банка или через онлайн-сервисы банковских систем (Сбербанк-онлайн, Альфа-клик и т.д.) на банковский счет архитектурного бюро с которым вы заключите договор.
Проектная документация предоставляется заказчикам на бумажном носителе, в форме альбома чертежей (формат бумаги А3).
Ознакомиться с примерами проектов:
- Пример состава проектной документации серии домов ЯП и КП >>>
- Пример состава проектной документации серии домов ПА >>>
- Пример состава проектной документации серий домов МКК, МПГ, МПК >>>

Доставка проекта в Новый Уренгой

Доставка осуществляется бесплатно Почтой России или службой экспресс-доставки.
Срок экспресс-доставки в г. Новый Уренгой: 2-3 дня (без дня забора).
Доставка производится по указанному в договоре адресу заказчика или в пункт самовывоза службы экспресс доставки, расположенного по адресу: г. Новый Уренгой, мкр. Строителей д.5. стр.1

Если вы внимательно прочли всю представленную информацию, но у вас остались вопросы, то позвоните или напишите нам, мы обязательно на них ответим.

Каталог: Проекты домов и коттеджей >>>


Если наши проекты вам нравятся - поделитесь ими с друзьями!!!


Новые проекты домов

Стиль фахверк: История и современность.

Наш сайт представляет новую статью об архитектурном стиле фахверк. Знакомьтесь с историей и особенностями этого уникального стиля, с его глубоко укоренившимся прошлым и современными возможностями при проектировании домов в этой элегантной и привлекательной эстетике.

Зачем нужна экспертиза проектной документации: важность и основные преимущества

Узнайте, почему экспертиза проектной документации является неотъемлемой частью любого строительного процесса и какие преимущества она приносит. На нашем сайте вы найдете подробную информацию о важности проведения экспертизы проектной документации для обеспечения безопасности и качества строительных работ.

Все новости >>
 

Новые статьи
о строительстве

Отделка загородного дома: как делать правильно | Советы профессионалов

Профессиональные советы по отделке загородного дома: этапы работ, важность проектной документации и выбор подрядчика

Проектирование и строительство домов из оцилиндрованного бревна

Весомые преимущества строительства домов из оцилиндрованного бревна удивят даже самого требовательного эстета. Узнайте больше о процессе проектирования и строительства этих уникальных жилищ, которые сочетают в себе изысканность и прочность - все, что вам необходимо для комфортной и гармоничной жизни в окружении природы.

Все новости >>
 

Опрос о строительстве
  1. Дом какой площади Вы хотите построить?
    1. 100-150 кв. м - 2513 (31.59%)
       
    2. до 100 кв. м - 1896 (23.83%)
       
    3. 150-200 кв. м - 1648 (20.71%)
       
    4. 200-250 кв. м - 751 (9.44%)
       
    5. свыше 400 кв.м - 478 (6.01%)
       
    6. 250-300 кв. м - 380 (4.78%)
       
    7. 300-350 кв. м - 161 (2.02%)
       
    8. 350-400 кв. м - 128 (1.61%)
       
Принять участие в других опросах >>
Форум о строительстве

Объявления

Мы оказываем помощь и даем грамотные и профессиональные консультации по подбору готовых проекты домов, коттеджей, бань, гаражей, бассейнов, беседок и других малоэтажных построек. В нашем каталоге также широко представлены проекты коммерческого назначения (мотели, магазины, автомойки). Мы оказываем свои услуги по всей России и странам СНГ. Проектная документация разработана в соответствии с действующими строительными нормами и правилами, принятыми в Российской Федерации и обеспечивает безопасную для жизни и здоровья людей эксплуатацию объекта при соблюдении предусмотренных рабочими чертежами мероприятий. Мы оказываем содействие не только в подборе готовых проектов домов самых лучших архитекторов России, но также можем помочь вам с индивидуальным проектированием по вашим эскизам. Кроме этих проектных работ, мы можем предложить и рекомендовать вам услуги надежных строительных компаний работающих в Московской области и других регионах России.

| Проекты домов | Пример проекта | Строительство | Все о стройке | Контакты | Мобильная версия | Политика конфиденциальности и обработки персональных данных |

https://www.parthenon-house.ru - готовые проекты домов, малоэтажное строительство России.
Разработка, дизайн и продвижение сайта - компания "ПАРФЕНОН" (2007-2025)
Мы вконтакте